Проектирование климатических систем для кабинета МРТ
Наша компания предлагает услугу проектирования климатического оборудования МРТ «под ключ». Мы выполняем полный комплекс работ – от разработки проекта с учётом всех требований производителя томографа и соблюдением норм и правил СНиП, до поставки необходимого оборудования, монтажа и пусконаладки. Опытные инженеры-проектировщики, монтажники и инженеры отдела пуско-наладки обеспечат, чтобы вентиляционное оборудование для МРТ, системы кондиционирования и холодоснабжения были реализованы на высшем уровне.
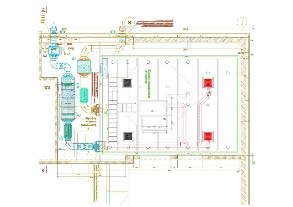
Этапы проектирования климатической системы
Проектирование климатической системы для кабинета МРТ начинается со сбора и проверки исходных данных: планировок и состава помещений МРТ-блока, режима эксплуатации (включая работу 24/7), требований ЛПУ и параметров по подготовке площадки выбранной модели МРТ. На этом этапе также фиксируются решения по RF-экранированию и места прохода инженерных коммуникаций, чтобы исключить конфликт с экранирующим контуром и требованиями безопасности.
Далее выполняются инженерные расчёты: определяются и тепловые нагрузки по каждому помещению и типу оборудования, требуемые расходы приточного и вытяжного воздуха, необходимые уставки температуры и влажности, а также условия отвода тепла от технологического оборудования и сопутствующих систем.
По результатам расчётов формируется концепция системы — выбирается оптимальная схема вентиляции, кондиционирования и холодоснабжения, определяется потребность в резервировании ключевых узлов, задаются принципы балансировки, перепадов давления между помещениями и сценарии работы в аварийных режимах.
После согласования концепции выполняется подбор оборудования и проработка компоновки: размещение приточно-вытяжных установок, холодильного оборудования и его контуров, выполняется подбор необходимой автоматики, трассировка воздуховодов и трубопроводов, организация дренажа и мер защиты от протечек, обеспечение сервисного доступа и возможности регламентного обслуживания без длительной остановки.
Финальным этапом выпускается комплект проектной/рабочей документации — планы, схемы, узлы, спецификации, задания смежным разделам (АР, ЭОМ, ВК) и описание алгоритмов автоматизации. На этапе реализации обеспечивается сопровождение: ответы на замечания, корректировки по факту монтажа, участие в пуско-наладке, балансировке и подтверждении достижения требуемых параметров микроклимата в помещениях МРТ-блока.
Преимущества
- Соблюдение всех нормативов — ГОСТ, СНиП, СанПиН, СП, технические рекомендации производителей томографов.
- Индивидуальный подход — адаптация проекта под конкретное оборудование и планировку.
- Опыт реализации медицинских проектов — успешно внедрены решения в учреждениях федерального уровня и частных диагностических центрах.
Подбор комплектующих и поставка оборудования для системы охлаждения МРТ
Производители медицинского оборудования активно работают над совершенствованием своей продукции, создавая всё более передовые устройства для диагностики и лечения различных заболеваний. Одним из наиболее эффективных методов исследования является магнитно-резонансная томография (МРТ), представляющая собой сложный аппарат, способный обеспечить чёткое трёхмерное изображение состояния организма и точно поставить диагноз. Для бесперебойной работы МРТ необходима специальная система охлаждения, обеспечивающая необходимый микроклимат помещений и надёжное отведение тепловыделений.В современных установках для МРТ используются сверхпроводящие магниты, способные создавать магнитное поле более 3 Тл. Для обеспечения таких показателей необходимо; глубокое охлаждение магнитов. Кроме того, томограф, как и любое другое медицинское оборудование, нагревается при эксплуатации, что может привести к сбоям. Поэтому при проектировании кабинета томографии обязательно предусматривается система охлаждения.
Правильно подобранная холодильная установка для системы охлаждения МРТ - это не только надёжность, но и гарантия длительной эксплуатации дорогостоящего медицинского оборудования.
Основные задачи системы охлаждения:
Охлаждение томографа
Кондиционирование и вентиляция комнаты сканирования для обеспечения необходимого микроклимата.
Отведение тепловыделений в техническом помещении и в комнате управления.
Аварийное отведение гелия из комнаты сканирования (опционально).
Подбор оборудования.
На основании проекта осуществляется подбор оптимального климатического оборудования. Подбираются прецизионные кондиционеры и чиллеры с необходимой мощностью, фанкойлы и сплит-системы для обеспечения равномерного охлаждения и поддержания заданной температуры. Выбираются пароувлажнители с точно регулируемыми режимами для поддержания влажности. Планируются системы автоматического управления и диспетчеризации, включающие шкаф автоматики, датчики и программируемые контроллеры.
В подборе оборудования учитываются низкий уровень шума, виброизоляция. Параллельно осуществляется поставка оборудования для томографов – закупаются все узлы системы через проверенных производителей, каждый компонент имеет необходимые сертификаты.

Система холодоснабжения
Чиллер для МРТ — высокопроизводительная компрессорно-конденсаторная холодильная установка для охлаждения жидкого теплоносителя (воды или водно-гликолевой смеси), циркулирующего по замкнутому контуру. Внутри чиллера тепло отбирается у теплоносителя через испаритель и отводится в атмосферу через конденсатор под управлением автоматики. Как правило чиллер размещают вне процедурной — на улице или на крыше здания, а охлаждённый теплоноситель по трубопроводам подаётся к теплообменникам системы кондиционирования, но бывают решения с применением чиллера комнатного исполнения и компоновки. Теплообменники-охладители часто интегрируют в приточные воздуховоды, где они охлаждают поступающий в помещение воздух.
Чиллер является центральным элементом системы холодоснабжения МРТ и обеспечивает стабильную температуру и надёжный теплоотвод для всех потребителей холода. В медицинской сфере чиллеры — ключевое звено систем охлаждения высокотехнологичной аппаратуры, прежде всего МРТ, работающей круглосуточно и требующей строгого соблюдения параметров. Современные чиллеры для МРТ могут оснащаться резервированными компрессорами с инверторным управлением, системой аварийного оповещения и интегрируются в общую климатическую систему объекта с обязательной пусконаладкой и контролем рабочих характеристик.

Система кондиционирования и вентиляции воздуха
Приточная и вытяжная вентиляция. В помещение МРТ подаётся свежий подготовленный воздух через систему приточной вентиляции. Обычно используется 100% наружный воздух, который проходит многоступенчатую обработку перед подачей в комнату томографа. В состав приточной установки входят фильтры тонкой очистки, вентилятор, водяной охладитель (радиатор, подключённый к чиллеру), электрический нагреватель для зимнего периода, регулирующие клапаны и шумоглушители. Такая установка одновременно выполняет функции вентиляции и поддержания заданной температуры приточного воздуха. Воздухораспределительные решётки, как правило, устанавливаются в потолке или в верхней зоне стен, чтобы обеспечить равномерное распределение потоков и избежать застойных зон. Удаление воздуха осуществляется вытяжной вентиляцией с собственным вытяжным вентилятором, обратными клапанами и элементами виброизоляции. Приточно-вытяжная схема климатической системы позволяет подавать свежий воздух, удалять избыток тепла и поддерживать баланс воздуха в помещении МРТ.
Прецизионный кондиционер. Помимо центральной приточной системы, для климатического оборудования МРТ часто применяются прецизионные кондиционеры. Это специализированные установки, размещаемые рядом с процедурной или в отдельном техническом помещении. Прецизионный кондиционер в основном работает в режиме рециркуляции: забирает воздух из МРТ-комнаты, точно удерживает заданные температуру и влажность и подаёт воздух обратно. В составе прецизионного кондиционера имеются собственные фильтры, вентиляторы, охладители, электронагреватели, паровые увлажнители и выносные конденсаторы для отвода тепла. Такой тип оборудования обеспечивает высокую точность поддержания параметров микроклимата и быстро компенсирует тепловыделения томографа и сопутствующей техники. Обычно прецизионный кондиционер несёт основную нагрузку по охлаждению, а приточная система обеспечивает подмес свежего воздуха и поддержание нормального содержания кислорода.
Фанкойлы для вспомогательных помещений. Помимо процедурной, в комплексе помещений МРТ есть операторская (пультовая) и другие служебные и технические зоны, где работают специалисты и установлено компьютерное оборудование. Эти помещения также требуют надёжного охлаждения. Для них часто применяют фанкойлы — компактные внутренние блоки с теплообменником, подключённым к системе холодоснабжения (к чиллеру). Фанкойл в пультовой снимает избыток тепла от электроники и персонала, помогая поддерживать комфортную температуру на уровне 20–24 °C. Такое климатическое оборудование работает практически бесшумно, не содержит мощных магнитных узлов и безопасно при размещении вблизи МР-томографа.
Система осушения и увлажнения воздуха. Для точного контроля влажности в климатической системе МРТ могут устанавливаться отдельные модули осушения и увлажнения. В холодный период, когда наружный воздух пересушен, в приточный канал добавляют паровые увлажнители, которые доводят относительную влажность до требуемого диапазона 40–60%. Летом, напротив, при высокой влажности охлаждающие элементы кондиционирования работают как осушители: влага конденсируется на поверхности теплообменника и отводится через дренаж. Благодаря этому система круглогодично поддерживает влажность в заданных пределах, что важно и для стабильной работы МР-томографа, и для комфортного самочувствия людей.

Система автоматики
Автоматизация и система датчиков. Все элементы климатической системы МРТ объединяются в единый автоматизированный комплекс управления. В помещениях и воздуховодах устанавливаются датчики температуры, влажности, давления воздуха, а также газовые датчики для обнаружения возможной утечки гелия. Сигналы с датчиков поступают на контроллер, который управляет работой вентиляторов, чиллера, нагревательных элементов, увлажнителей и других узлов климатического оборудования.
При отклонении параметров от заданных значений автоматика меняет режим работы системы, а в аварийных ситуациях (например, при перегреве или обнаружении гелия) формирует сигнал тревоги и может включать аварийную вентиляцию. Наличие автоматизированного управления позволяет поддерживать микроклимат в помещении МРТ без постоянного участия оператора, с высокой точностью и надёжностью, что критично для безопасной эксплуатации магнитно-резонансного томографа.
